Продается жилой дом в селе Большое Руново Каширского района Московской области.
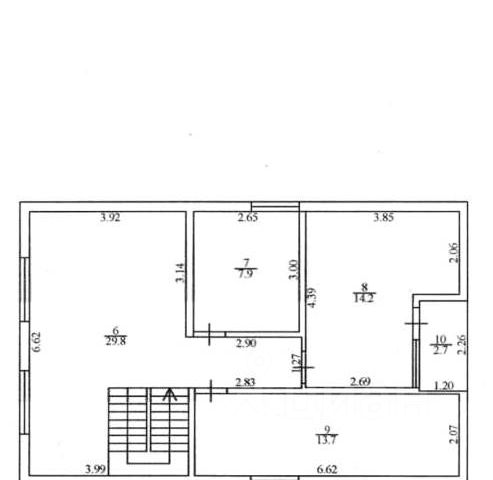
Дом новый двухэтажный с мансардой, общая площадь - 91,3 кв.м,
1-й этаж: гостиная 22 кв.м, комната 10 кв.м, санузел совмещенный;
2-й этаж: три жилых комнаты - 12/10/10 кв.м, санузел необорудованный;
шикарная мансарда 52 кв.м -свободная планировка;
высота потолков - 2,7 м. Дом каркасно-щитовой с утеплителем 150мм, наружная и внутренняя отделка - имитация бруса. Дом жилой в стадии завершения ремонта.
Коммуникации (свет - 15 квт 380 вольт), вода - скважина глубиной 47 м., канализация - септик (два колодца), отопление водяное от твердотопливного котла, горячая вода от бойлера ГВ. В настоящее время по государственной программе проводится догазификация населенных пунктов, в т.числе села Б.Руново, до участка бесплатное подведение газопровода, по плану 2026 г.
Теплый уютный дом, построен из экологически чистого материала, где легко дышится, где прекрасная аура. Дом расположен в хорошем месте, с видом на Храм Вознесения Господня, место благодатное.
Отличный земельный участок 12 соток, правильной формы, закоординирован, с хорошей шириной по фасаду - 30 метров, обнесен забором из профнастила. Участок обрабатывается, земля отличная, все растет в хороших руках, посажены плодовые деревья и кустарники (шикарный виноград), и конечно цветы, которые своим многообразием красок радуют глаз.
На участке есть теплица размером 6х12 м на ленточном фундаменте.
На участке имеется небольшой каркасный дом общей площадью 26,3 кв.м., отапливается, состоит из двух комнат, здесь же имеется подвал (кирпич)глубиной 2,5 м, площадью 9 кв.м.
На участке имеется хозблок (мастерская) размером 3,5х9 м, очень ценное помещение.
Летом неописуемая красота, все утопает в зелени, недалеко лес, много грибов и ягод.
Тихий жилой район. Рядом дружные соседи, многие разводят домашнее хозяйство - птицу, коз (натуральные продукты).
Село крупное, со всей инфраструктурой - магазины, почта, школа, д/сад, медобслуживание, спортивные площадки и т.д.
Круглогодичный подъезд, рядом автобусная остановка. В селе несколько магазинов, есть сетевые.
Недалеко очень красивый пруд, до реки Оки - 1,2 км, это пляжный отдых и шикарная рыбалка (ловится щука, лещь, судак, жерех и т.д.).
Имеется отличное автобусное сообщение с городами Каширой, Озерами, ж/д сообщение с г. Москвой. Один собственник, зарегистрированных лиц нет. Подходит под Курский сертификат и другие сертификаты. Торг присутствует.